Heart-Core.jpg

Framework

Heart-Core.jpg

Framework – Urban high school and community center — Building Design

 
 

Located in downtown Portland, I saw the opportunity for a large urban educational center to not only cater to high school students, but could become a resource for the larger community; providing a cohabitation between the school and the public.

 
 
 
 

Since the site is so large I wanted to make it was accessible and embrace its urban setting. The building would become an anchor at a busy intersection, while the track and field would sit adjacent to a proposed urban park. Heavy vegetation would be used to create a sense of boundary for the site, while contributing to Portland’s need for proper water mitigation.

 
 
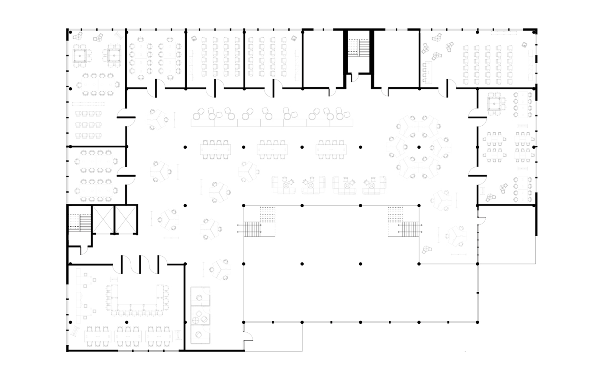
More public facilities would rest at the base of the building, while the main high school would sit above. Elevating the school would reenforce security checkpoints, but wouldn’t completely isolate it from the public domain.

More public facilities would rest at the base of the building, while the main high school would sit above. Elevating the school would reenforce security checkpoints, but wouldn’t completely isolate it from the public domain.

 
Site Plan

Site Plan

 
 

Education and the method of teaching has changed and thus our schools need to evolve to better serve our teachers and students. No longer is it necessary to confine students to a small classroom with segmented rows of desks, instead, there is the opportunity to create dynamic spaces that directly and indirectly support the subject matter. Overall, I wanted to design a building that was a physical framework for the teachers and students to shape their learning environments to better serve their needs, and be a facility that could continue to evolve with time.